Jakarta | 4/10 – PEMADAMAN listrik di seluruh Aceh yang berlangsung pada 29 September 2025 hingga 1 Oktober 2025, masih menimbulkan perbincangan hangat di tengah masyarakat Aceh, termasuk pelaku usaha. Peristiwa ini disebut sebagai ironi, mengingat Aceh memiliki sumber daya energi yang melimpah. Pemadaman lampu ini juga dinilai oleh sebagian orang, terburuk sejak tsunami 2004 dan konflik usai.
Listrik mati berhari-hari ini membuka memori Jose Rizal, Ketua Umum Asosiasi Pengusaha Bumiputera Nusantara Indonesia (Asprindo) yang kebetulan salah seorang tokoh Aceh.

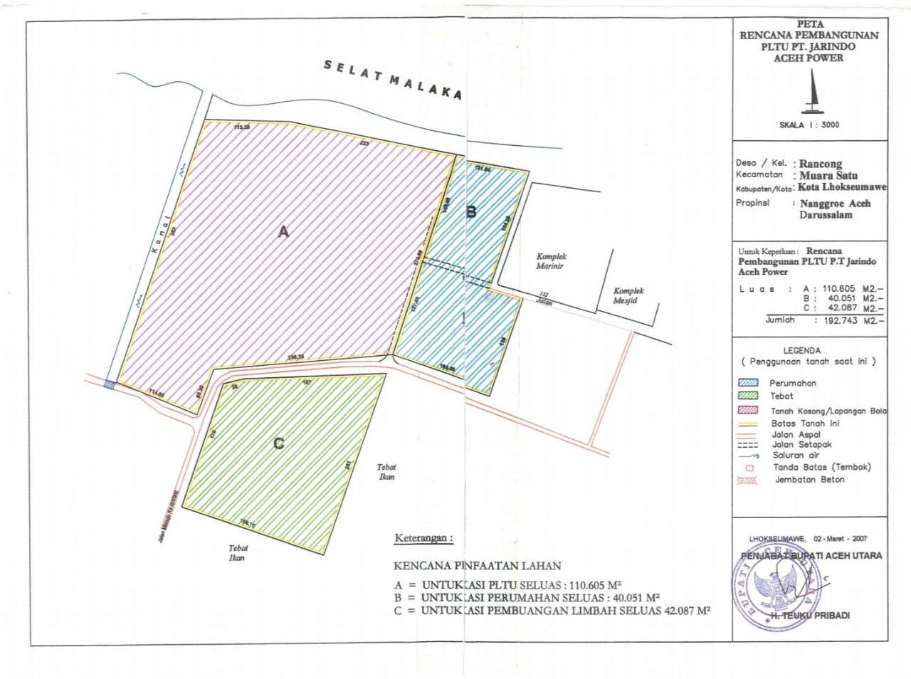
Saat dimintai pendapat oleh wartawan, di luar dugaan, Jose ternyata punya cerita terkait dengan listrik Aceh. Ia pernah mengupayakan mengurus pembangunan PLTU Rancong di wilayah Arun, Kabupaten Aceh Utara lokasi tersebut saat itu di pilih yang sudah ditetapkan sebagai Kawasan Industri Pasai (KIP) Aceh utara LNG Arun, melalui perusahaannya PT Jorindo Agung yang kemudian melahirkan PT Jorindo Aceh Power bekerja sama dengan Perusda Bina Usaha.
“Saat itu, semua perizinan lokasi sudah siap. Investor pendanaan juga siap. Kami juga sudah mengantongi izin hibah lokasi tanah dari pemerintah pusat, ESDM. Pertamina dan Kementrian Keuangan sudah mendapat persetujuan hibah tanah lokasi tersebut kepada kabupaten aceh utara yang merupakan tanah PT Arun milik Pertamina seluas 19,2 Ha untuk di jadikan lokasi PLTU,” kisah Jose.

Bahkan pada 14 Agustus 2007, sudah di tanda tangani Power Purchase Agreement (PPA) dan dilakukan pada saat ground breaking PLTU Pacitan secara nasional di Pacitan Jawa Timur. “Sekalian Dengan 3 PLTU lainnya menandatangani PPA di depan Menteri ESDM dan Dirut PLN serta yang mewakili pemerintah. Sebagai proyek nasional IPP (Independent Power Producer). Tapi kemudian proyek itu tidak bisa diwujudkan,” kenangnya.
Hibah Tanah Tidak Tuntas
Gagalnya proyek PLTU Rancong, menurut Jose akibat berlarut-larutnya pemecahan sertifikat status tanah hibah oleh Badan Pertanahan Nasional Kabupaten Aceh Utara. “Awalnya, karena Kabupaten Aceh Utara mengalami pemekaran, melahirkan kota Lhokseumawe. Kebetulan lokasi yang direncanakan untuk PLTU berada di perbatasan 2 wilayah yang kemudian menjadi masuk ke wilayah kota Lhokseumawe. Setelah itu kemudian terbit nya surat pembatalan hibah dari walikota Lhokseumawe. Memang pada akhirnya dapat diselesaikan dengan musyawarah pemda kedua belah pihak. Tapi bagi investor menjadi takut.
Harusnya tanah untuk kepentingan industri – termasuk untuk PLTU Rancong, yang sudah disetujui Kementrian Keuangan untuk dihibahkan ke pemerintah daerah, malah dibatalkan oleh Walikota Lhoksemauwe. Itulah akibat ego sektoral. Padahal saya ikut membantu pemerintah daerah Aceh Utara mengurus hibah itu. Dengan pembatalan itu, otomatis pemecahan sertifikat untuk PLTU Rancong tidak bisa dilakukan menjadi terhambat. Proses itu akhirnya berlarut-larut, meskipun sudah dilakukan konsolidasi berkali-kali. Karena jenuh menunggu, investor akhirnya mundur.”
Keterangan Jose dibenarkan Mehrabsyah, yang ketika proyek itu diinisiasi menjabat sebagai Ketua Perindustrian dan Perdagangan Kabupaten Aceh Utara. “Saya menjadi saksi bagaimana pak Jose melalui Jorindo Agung dan Jorindo Aceh Power berjuang mewujudkan PLTU Rancong. Sebagai putra Aceh, saya kira beliau sudah berusaha memberikan pikiran, tenaga, dan bahkan materi yang tidak sedikit untuk memperjuangkan hadirnya PLTU Rancong.”
Menurut Mehrabsyah, sejak Maret 2007 hingga 2013, banyak dilakukan koordinasi dan konsolidasi di antara para stakeholders untuk mewujudkan PLTU Rancong. Tapi ia juga tidak memahami mengapa BPN tidak kunjung bisa melakukan pemecahan sertifikat agar PT Jorindo Aceh Power memiliki hak menggunakan tanah guna mengelola PLTU dimaksud.
Siap Mengelola Geotermal
Saat ini, Jose menunjukkan ketertarikan untuk mengelola geotermal sebagai salah satu sumber energi terbarukan di Aceh. “Indonesia adalah negara dengan potensi geotermal terbesar ke-3 di dunia. Dan salah satunya Aceh. Kalau Aceh mengalami krisis energi, itu ironi,” katanya.
Apakah Jose akan kembali membangun pembangkit listrik di Aceh? “Sebagai putra Aceh, tentu saja saya terpanggil untuk membangun Aceh. Masalahnya, apakah pemerintah daerah bersedia memberi izin dan memfasilitasi? Saya tidak ingin mengulang cerita PLTU Rancong. Saya berharap pemerintah daerah mau benar-benar mengoptimalkan potensi energi di Aceh, sehingga Aceh tidak lagi mengalami peristiwa seperti sekarang. PLTU Rancong juga masih memungkinkan dilanjutkan kok, asal pemerintah mau,” pungkas pengusaha nasional yang sudah puluhan tahun menjadi penduduk Jakarta ini. [***]







